Description
Thanks to its small size and the ability to bend, you can create both smooth lines and light circles, allowing it to create stylish and creative design solutions. The ability to create lightweight freestanding luminaires also extends the variations in the possibilities of this profile.
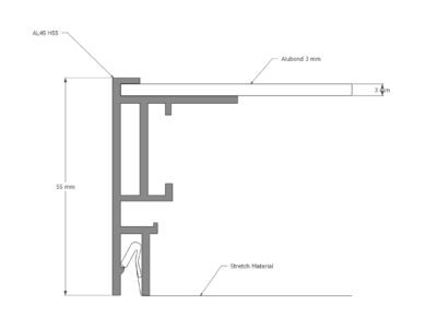
Features:
- For creating light lines, circle and thin suspended lamps
- Used with mini harpoon
- Light weight
- For use with stretch ceiling
- Light source – flexible LED diffuser 20 mm width
- Height loss min 40 mm
- Bendable
- Also works as a separator
- Can be recessed in the ceiling or suspended separately
- Suitable for use with Vecta support system
- Visibility depends on the project
















